Lot Consolidation

26/01/12

1050 may be required for additional parking spaces. May require a right of way agreement. (26/01/12) Ashley Lafontaine has replied to DIO inquiry <EMAIL>. Parking lot is not permitted use.

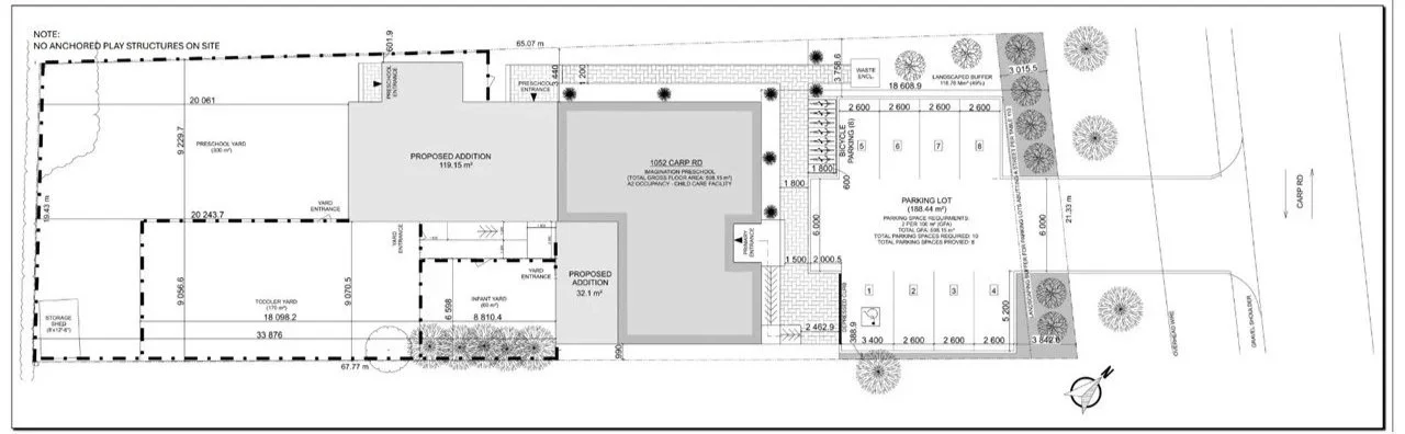
Lot Consolidation may also occur, this would give us the opportunity to create the drive through drop off design. Lot consolidation can mean a larger facility, as this will now be part of 1 site plan control application.

Lot Consolidation should approach development with a larger site approach. Consider sketch below, the site blow shows 14 parking spaces for staff, along with 4 parking spaces. Site shows a drop in/drop off laneway with ample and organized pick up/drop off lanes.

Site landscaping incorporates more trees in yard areas. Site landscaping plan will include play area design.

Larger site design leaves room for larger facility/ more rooms. See in sketch below, space for approximately two additional preschool and toddler rooms.

NOTE FROM VERONICA - Daycare licensing approved based on #on pre-existing spaces. # of spaces impact CWELCC funding.

Consider also - EAF Grants - Accessible pick/up drop off, Sensory play areas, multi-functional spaces.

LAND VALUATION

Century 21 listing shows 1052 Carp Rd listed at $1.1 million at the time of listing. **Numbers below are assumptions only**

  • Focusing only on the initial proposed development, presume the value add from residential to daycare produces a property value of $1.9million.

  • What would the value of the neighboring property be with a development (ie, a separate daycare facility)?

    • Could there potentially be two assets valued at $1.9 million?

  • How does that compare to the value of the property if used as a parking lot?

    • IE cost of vacant land - $500,000 > cost of parking lot $200,000

  • How does this compare to the value of a larger site but same size building (we keep the plans as - is but merge the sites solely for the purpose of parking like the city wants us to have.

    • How much value do we gain for a larger site?

    • Does the return on investment equal the loss of personal asset for this?

    • Do we gain this back in final valuation of building and site without adding more building?

    • Can we bring this to a profitable level by extending the building size?

Carp Rd Widening

26/01/12

26/01/13

Consider Carp Rd Widening Plan - Please see sketch below, approximate site plan for when Carp Rd widens, see how the front lot line changes based on city specifications.

Road median for in/out pick up?

Neighborhood Context

1052 Carp Rd is located on the southern stretch of Carp Rd between the 417 and Hazeldean Rd. Mixed Uses residential and commercial, feeding into Industrial zones North of the 417.

This section of Carp Rd acts as a feeder funnel from Hazeldean Rd to and from the 417 on-ramp.

Neighborhood mixed uses along Carp Rd. To the rear of the property Feed Mill Creek Park (stormwater pond).

Corridor surrounded with N1 Neighborhood Zones

Mainstreet Corridor Zoning along Hazeldean Rd anticipates residential intensification.

NEIGHBORHOOD MIXED USES

Consider densification objectives within the Suburban Transect

Refer to Outer Urban Transect to consider intensification impacts along MAIN STREET CORRIDORS. Development along Hazeldean Rd will be primarily driven by high density residential apartment dwellings with mixed commercial uses.

Refer to Outer Urban Transect with CM2 (Minor Corridor 2) with N2E zoning to assess intensification within the Suburban Transect along MAIN STREET CORRIDORS

To align with Growth Directives and Intensification Goals, services and facilities, such as the proposed Daycare will provide a vital supply of adequate and accessible childcare spaces to evolving communities. As this neighborhood grows, outdated daycare facilities along Carp Rd will fail to offer critical accessibility needs.

DAYCARES IN OPERATION ON CARP RD.

Old Zoning

GEO OTTAWA ZONING MAP

ZONING INFORMATION

Current Zone: GM14 H(11)

DAYCARE USE PERMITED

BY-LAW REFERENCES

SECTION 100 - GENERAL PROVISION FOR PARKING

New Zoning

NEW CITY OF OTTAWA ZONING MAP

BY-LAW REFERENCES

SECTION 908 - NEIGHBOURHOOD MIXED USE
View Document

Official Plan Context

SECTION 5 - TRANSECTS
SECTION 3 - GROWTH MANAGEMENT FRAMEWORK

OFFICIAL PLAN REFERENCES

GROWTH MANAGEMENT FRAMEWORK

To align with target residential densities, larger daycare facilities support intensification by providing needed childcare spaces in modern facilities designed to accommodate accessibility needs.